Retour à l'aperçu

Duplex À vendre à Asse

Brusselsesteenweg 119/A8
1730 Asse

Voir sur la carte

€ 399.000

  • 3
  • 133 m²
  • 1.117 m²

Standingvol nieuwbouwproject Residentie DE OUDE MELKERIJ...

VALIMMAS verkoopt duplex-appartement A8 in "Residentie De Oude Melkerij", een welgelegen en stijlvol nieuwbouwproject met 8 comfortabele appartementen, een gelijkvloerse handelsruimte (apotheek), 19 (onder- en bovengrondse) autostandplaatsen/garages, 8 kelders en een gemeenschappelijke fietsenstalling.

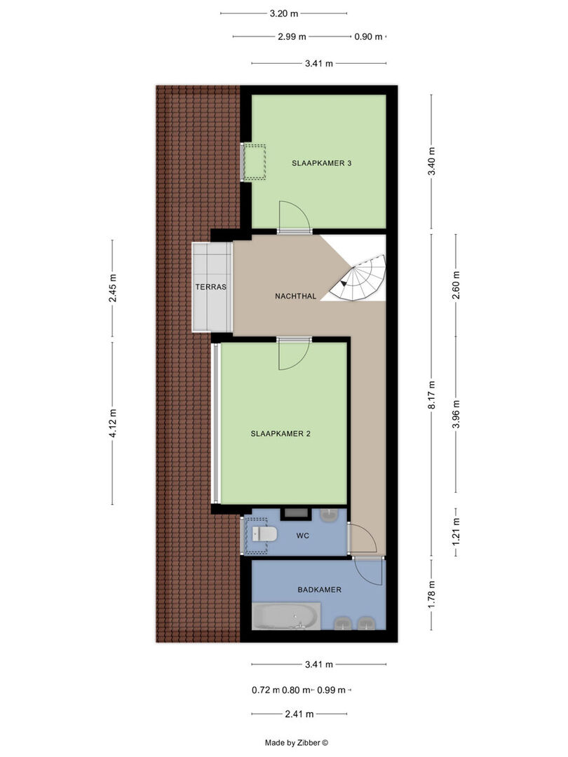
Appartement A8 (± 133m² + 2 terrassen) omvat oa. een inkomhal, een berging/wasplaats, een living met open ingerichte keuken (keukenkasten, inductiekookplaat, dampkap, combi-oven, vaatwas, koelkast, gootsteen), een nachthal met toilet, drie mooie slaapkamers, en twee comfortabele badkamers. Met alle hedendaags comfort en onmiddellijk instapklaar !

Het gebouw en de appartementen zijn inmiddels volledig afgewerkt, inclusief de schilderwerken !!!
Verkoop onder BTW-stelsel – gunstige regeling = slechts 6% ipv 21% BTW op constructiewaarde (mits voldaan aan de voorwaarden).

Gelegen langsheen de N9, dewelke recent volledig heraangelegd wordt. Kort bij centrumfuncties (winkels, scholen, sportcomplex, park, station en bushaltes…) en met makkelijke verbindingen naar Brussel, Ring 0, E40, A12, industriezones Zellik…

Contacteer ons gerust vrijblijvend voor meer informatie: info@valimmas.be - 02/452.59.25.

Finances

Prix indicatif
€ 399.000
Dans le système de TVA
Oui
Disponibilité
A l'acte

Bâtiment

Surface habitable
133 m²
Construction
3 façades
Année de construction
2024
étage
2
Nombre d'étages
3
Surface constructible bâtiment principal
133 m²
Largeur de façade
14,00 m
Orientation de la façade
Sud-ouest

Terrain

Surface au sol
1.117 m²

Aménagement

Salon
38 m²
Cuisine
Oui (Amer. super partiellement equipée)
Chambres
3
Chambre 1
12 m²
Chambre 2
13 m²
Chambre 3
12 m²
Salles de bains
2
Salle de bains
6 m² (Tout confor)
Toilettes
2
Superficie terrasse
7 m²
Sous-sol
Oui

Localisation géographique

Localisation géographique
zone d'habitation, Proximité de la gare
école de l'environnement
Oui
Environnement transportable
Oui
Magasins d'environnement
Oui
Environnement autoroutier
Oui
Station de l'environnement
Oui
Centre sportif de l'environnement
Oui

Techniques

Connexion de gaz
Oui
Connexion d'eau
Oui
électricité
Oui
Câblage téléphonique
Oui

Confort

Meuble
Non
Accessible aux fauteuils roulants
Non
Vidéophone
Oui
Détecteur d'incendie
Oui
Ascenseur
Oui
Piscine
Non

Énergie

Code unique PEB
EPB nog in opmaak
Type de fenêtres
Aluminium
Double vitrage
Oui
Inspection de l'électricité
Oui, conforme
Chauffage
Cogénération gaz naturel
Type de chauffage
Individuel
Panneaux solaires
Oui, Photovolataique

Information sur l'urbanisme

Destination
Zone d'habitat
Permis de construire
Oui
Permis de lotissement
Non
Droit de préemption
Oui
Invocation
Pas de correction juridique ou mesure administrative imposée
Verdicts
Non
G-score
B
P-score
B
Certificat de sol
Oui